NCC 2022 Volume One - Building Code of Australia Class 2 to 9 buildings
Classification
Building class 1a Building class 1b Building class 2 Building class 3 Building class 4 Building class 5 Building class 6 Building class 7a Building class 7b Building class 8 Building class 9a Building class 9b Building class 9c Building class 10a Building class 10b Building class 10c

Filter

Classification
Building class 1a Building class 1b Building class 2 Building class 3 Building class 4 Building class 5 Building class 6 Building class 7a Building class 7b Building class 8 Building class 9a Building class 9b Building class 9c Building class 10a Building class 10b Building class 10c

G2

Part G2 Boilers, pressure vessels, heating appliances, fireplaces, chimneys and flues

Part G2 Boilers, pressure vessels, heating appliances, fireplaces, chimneys and flues

Introduction to this Part

This Part is intended to reduce the risk to building occupants from the operation, malfunction or failure of boilers, pressure vessels and combustion appliances including components such as fireplaces, chimneys, flues, chutes, hoppers and the like.

Explanatory information

Part G2 does not contain requirements for gas heaters, gas appliances and associated flues.

Objectives

The Objective of this Part is to—

  1. safeguard occupants from illness or injury caused by—
    1. fire from combustion appliances installed within a building; and
    2. malfunction of a boiler or pressure vessel installed within a building; and
  2. protect a building from damage caused by the malfunction of a boiler or pressure vessel installed within.

Functional Statements

Combustion appliances using controlled combustion located in a building are to be installed in a way which reduces the likelihood of fire spreading beyond the appliance.

G2F1 requires that a heating system be installed to prevent fire spreading to adjoining building elements.

A key expression in G2F1 is “controlled combustion”. This expression means that only heating units which burn solid materials or oil must comply with these provisions. The expression applies to open fireplaces, oil heaters, solid-fuel burning stoves, coal heaters, pot-belly stoves, and other such cooking and heating devices.

The expression does not include electric heaters. Nor is it intended to include gas heaters covered by other State and Territory legislation.

Boilers and pressure vessels located in a building are to be installed in a manner which will provide adequate safety for occupants.

Additional measures must be taken when a boiler or pressure vessel is installed in a building, due to the potential damage and injury which may be caused by a malfunction.

Performance Requirements

Where provided in a building, a combustion appliance and its associated components, including an open fire-place, chimney, flue, chute, hopper or the like, must be installed—

  1. to withstand the temperatures likely to be generated by the appliance; and
  2. so that it does not raise the temperature of any building element to a level that would adversely affect the element’s physical or mechanical properties or function; and
  3. so that hot products of combustion will not—
    1. escape through the walls of the associated components; and
    2. discharge in a position that will cause fire to spread to nearby combustible materials or allow smoke to penetrate through nearby windows, ventilation inlets, or the like.

When installed in a building, a combustion appliance (including all associated components) must be:

  • designed to be robust enough to operate under all applicable heating conditions. It is particularly important that flue systems comply with this requirement, so they are compatible with the primary heating unit;
  • installed so that, when in operation, the radiated heat will not affect adjoining building elements (i.e. burn timber, warp steel lintels, char plasterboard and so on). This not only applies to the actual heating unit, but also to the attached flues, especially where they pass through other areas of the building (such as roofs, ceiling spaces, walls and the like); and
  • designed and installed so that the hot products of combustion are properly discharged in a manner which will not cause damage. To do this, builders must make sure flues are adequately joined to create a continuous discharge route. The discharge point must be such that discharged products will not re-enter the building. They should not ignite adjoining combustible materials where the appliance is installed.

When located in a building, boilers and pressure vessels must be installed to avoid, during reasonably foreseeable conditions, the likelihood of—

  1. leakage from the vessel which could cause damage to the building; and
  2. rupture or other mechanical damage of the vessel which could cause damage to the building or injury to occupants.

Because of the dangers of boilers and pressure vessels, care has to be taken during installation. Boilers and pressure vessels located outside a building are not covered by the BCA, but may be controlled by other State and Territory legislation.

Issues such as leakage of pressurised liquids and the consequences of the vessel being damaged must be considered. Damage must be avoided to the vessel. Such damage could occur if the vessel is located in an area subject to traffic.

Verification Methods

Compliance with G2P1(a) and G2P1(b) is verified when—

  1. components used within an appliance and its installation are constructed from—
    1. heat-resistant materials for maximum operating temperatures not less than 600℃, where the material complies with (c); or
    2. heat-tolerant materials for maximum operating temperatures more than 150℃ and less than 600℃, where the material complies with (c); and
  2. the building elements surrounding the appliance maintain their designed function and material properties inclusive of a full range of thermal movements when exposed to the heat effects of the appliance; and
  3. a sample of the material is tested to the maximum operating temperature, specified in (a)(i) or (a)(ii) for a minimum of 96 hours; and
  4. the tested sample, when allowed to cool, is free from—
    1. visible cracks and fractures; and
    2. visible indication of de-lamination; and
    3. linear distortion in excess of the equivalent of 10 mm per metre, and
    4. deterioration of the appearance of any surface finish, when compared to an unheated sample.

Under G2V1, it needs to be demonstrated that the proposed appliance will not deteriorate under standard operating conditions. Examples of deterioration may include deformation or failure of components that would render the appliance unsafe to use.

For the purposes of demonstrating compliance with (a), the typical operating temperature of a combustion device can be established by testing.

For the purposes of demonstrating compliance with (b), materials used for building elements (walls, floors and ceiling) in the areas surrounding an appliance can be appropriately selected and/or designed to align with the quantified values as determined by (a). This could either be achieved by using the expert judgement of an engineer or by adhering to manufacturer’s specifications. Certification in accordance with CodeMark Australia would also be a possibility in demonstrating compliance using the Verification Method. Full range of thermal movements relates to both the appliance and materials when exposed to both the heated and ambient conditions.

Benefits to industry derived from the application of this Verification Method include the potential use of non-standard national or internationally manufactured appliances. For example, test reports for appliances complying with various ISO Standards and various British Standards could be used to demonstrate compliance with the Verification Method. The Verification Method also allows for in-situ testing of unique combustion appliances, which would not easily be tested in accordance with the Australian Standard. Such testing would need to be verified by a suitably qualified practitioner and be supported by appropriate documentation.

Deemed-to-Satisfy Provisions

(1) Where a Deemed-to-Satisfy Solution is proposed, Performance Requirements G2P1 and G2P2 are satisfied by complying with G2D2 to G2D4.

(2) Where a Performance Solution is proposed, the relevant Performance Requirements must be determined in accordance with A2G2(3) and A2G4(3) as applicable.

To clarify that requirements of G2P1 and G2P2 will be satisfied if compliance is achieved with G2D2 to G2D4.

Where a solution is proposed to comply with the Deemed-to-Satisfy Provisions, G2D1 clarifies that compliance with G2D2 to G2D4 achieves compliance with G2P1 and G2P2.

Where a Performance Solution is proposed, the relevant Performance Requirements must be determined in accordance with A2G2(3) and A2G4(3) as applicable. (See commentary on Part A2).

The installation of a stove, heater or similar appliance in a building must comply with:

  1. Domestic solid-fuel burning appliances — installation: AS/NZS 2918.
  2. For boilers and pressure vessels: Specification 30.

To specify the Australian Standards which are suitable to achieve compliance with G2P1 and G2P2 as regards the installation of domestic solid-fuel burning appliances, pressure equipment and the like.

Solid-fuel burning appliances and pressure equipment

G2D2 lists one standard as a Deemed-to-Satisfy Provision for the installation of domestic solid-fuel burning appliances (see G2D2(a)), and for boilers and pressure vessels G2D2 refers to Specification 30.

The requirements of G2D2 limits the requirements to stove, heater or similar appliance in a building. Therefore, the provision does not apply to boilers and pressure vessels outside of these limitations, such as portable gas appliances.

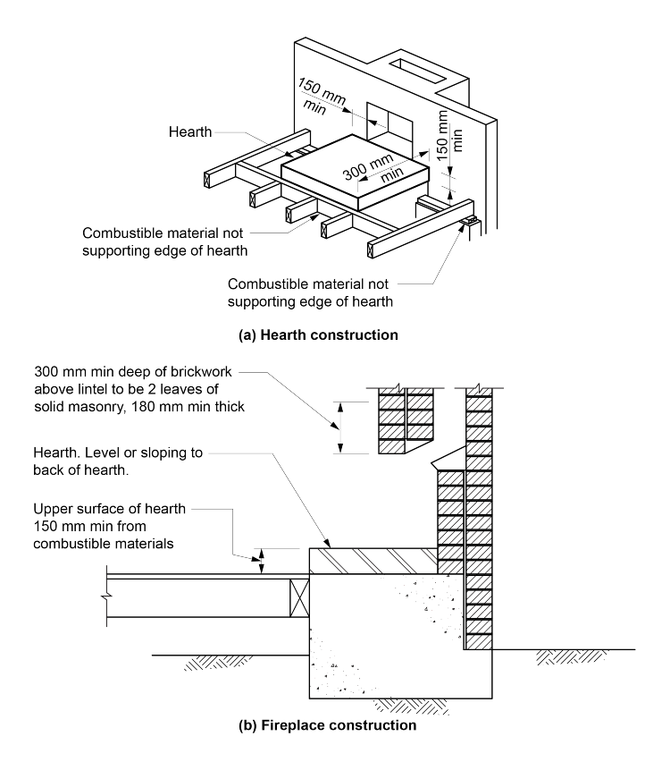
An open fireplace, or solid-fuel burning appliance in which the fuel-burning compartment is not enclosed, must have—

  1. a hearth constructed of stone, concrete, masonry or similar non-combustible material so that—
    1. it extends not less than 300 mm beyond the front of the fireplace opening and not less than 150 mm beyond each side of that opening; and
    2. it extends beyond the limits of the fireplace or appliance not less than 300 mm if the fireplace or appliance is free-standing from any wall of the room; and
    3. its upper surface does not slope away from the grate or appliance; and
    4. combustible material situated below or around the external edge of the hearth, but not below that part required to extend beyond the fireplace opening or the limits of the fireplace, is not less than 150 mm from the upper surface of the hearth; and
  2. walls forming the sides and back of the fireplace up to not less than 300 mm above the underside of the arch or lintel which—
    1. are constructed in 2 separate leaves of solid masonry with a total combined thickness not less than 180 mm, excluding any cavity; and
    2. do not consist of concrete block masonry in the construction of the inner leaf; and
  3. walls of the chimney above the level referred to in (b)—
    1. constructed of masonry units with a net volume, excluding cored and similar holes, not less than 75% of their gross volume, measured on the overall rectangular shape of the units, and with an actual thickness of not less than 100 mm; and
    2. lined internally to a thickness of not less than 12 mm with rendering consisting of 1 part cement, 3 parts lime, and 10 parts sand by volume, or other suitable material; and
  4. suitable damp-proof courses or flashings to maintain weatherproofing.

To provide for the safe design and installation of open fireplaces.

G2D3 relates to open fireplaces where timber or other solid material is burned and there is generally no in-built enclosing structure or apparatus across the front to contain sparks, etc.

The construction of a fireplace must comply with the structural requirements in Section B of the NCC. The G2D3 requirements relate to additional measures for fire safety.

G2D3(a) states that the fireplace must have a hearth made of stone, concrete or other similar non-combustible material. The non-combustible material must be similar in nature to stone and concrete. The concessions for non-combustible material in Section C of the NCC, particularly C2D10 (such as plasterboard and similar lightweight materials), must not be construed as complying with these specific provisions.

With the increased danger due to the open-fire area, G2D3(a) contains requirements to ensure the area in front of the opening is protected. The hearth is intended not only to protect adjoining building elements from sparks, but also to reduce the danger of logs rolling out. See Figure G2D3.

G2D3(b) deals with the construction of a fireplace (additional to the requirements of Section B). These relate to the fire box and the need to ensure that the walls adjacent to the fire can withstand the heat. Concrete blockwork is not allowed to form the fire box because it performs poorly under repeated heating and cooling cycles.

G2D3(c) contains the requirements for chimneys.

G2D3(c)(i) aims to make sure the masonry of a chimney is capable of withstanding heat. The construction requirements are less than those for the firebox, because the most intense area of the fire is below the actual level of the chimney.

G2D3(c)(ii) contains a requirement to line the chimney with a rendering mix to make sure it draws properly. A smoother surface:

  • allows a freer air-flow up the chimney, and therefore removes smoke more effectively; and
  • helps to minimise soot build-up, therefore minimising the risk of chimney fires.

G2D3(d) contains a requirement to ensure that damp-proof courses and flashings are installed.


Figure G2D3: Fireplace clearance from combustible materials

Image
Figure G2D3: Fireplace clearance from combustible materials

(1) If an incinerator is installed in a building, any hopper giving access to a charging chute must be—

  1. non-combustible; and
  2. gas-tight when closed; and
  3. designed to return to the closed position after use; and
  4. not attached to a chute that connects directly to a flue unless the hopper is located in the open air; and
  5. not located in a required exit.

(2) A room containing an incinerator must be separated from other parts of the building by construction with an FRL of not less than 60/60/60.

To provide requirements for the safe installation of an incinerator room in a building.

Incinerators, hoppers and incinerator rooms

G2D4(1) contains requirements for incinerators and their hoppers. “Hopper” refers to the area used to feed the incinerator. The requirements for hoppers aim to make sure they do not increase the risk of fire to the adjoining building area.

G2D4(1)(e) states that a hopper must not be located in a required exit. This is to prevent any potential problem where a failure in the hopper could affect the egress route.

G2D4(2) requires an incinerator to be fire separated from the remainder of the building.